江南官方端网站登录入口微信公众号
官方微商城
服务热线
400-777-2203
江南官方端网站登录入口防水涂料精要知识二十问答
江南官方端网站登录入口三号瓷砖透明防水涂料特点以及施工方法
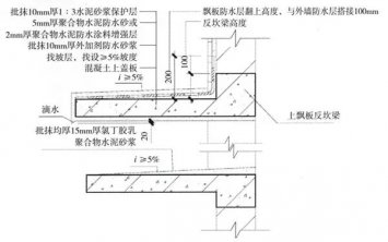
外墙空调位发生渗漏,怎么办?
防止隧道渗漏水七大措施
关于外墙变形缝引起的渗漏,如何预防和处理